Large Industrial Yard For Lease

    By Negotiation
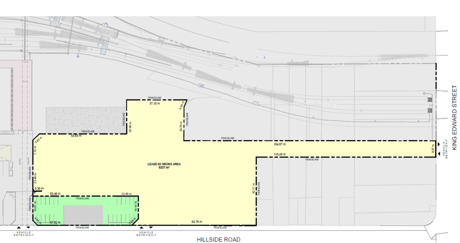
    200 Hillside Rd, South Dunedin

    Features

    • Large Yard Space
    • Options for size
    • Excellent Access

    Description

    Not often you find three quarters of a hectare of industrial yard available in South Dunedin...!
    Surplus to requirements for KiwiRail, this yard is on the new Hillside site, and has access from Hillside Rd and King Edward St.
    Can be split into smaller yard areas for the right tenant/term.
    Contact me today to find out more!

    Property Data

    • 7351m² (0.7351 ha)
    • 1m²

    Map

    Contact the Agent






    Similar Listings

    Quality Kaikorai Yard For Lease

    536 Kaikorai Valley Road, Kaikorai Valley
    • Metalled Yard
    • Available now
    • Good access
    By Negotiation
    For Lease

    Sawyers Bay Yard!

    70 Borlases Road, Port Chalmers
    • Sawyers Bay
    • Good access
    • Metalled surface
    By Negotiation
    For Lease
Back to top